HotelSHIFT Submits Proposal for 310-room Stapleton Plaza Hotel to 220-Unit Apartment Conversion
The 11-Story hotel with 310 rooms will be converted to 220 residential units.
Adaptive reuse specialty group HotelSHIFT submitted a proposal in early January 2026 to convert the former Quebec Street Holiday Inn Denver East from a 310-key hotel to a 220-unit multifamily community at the two-tower complex.
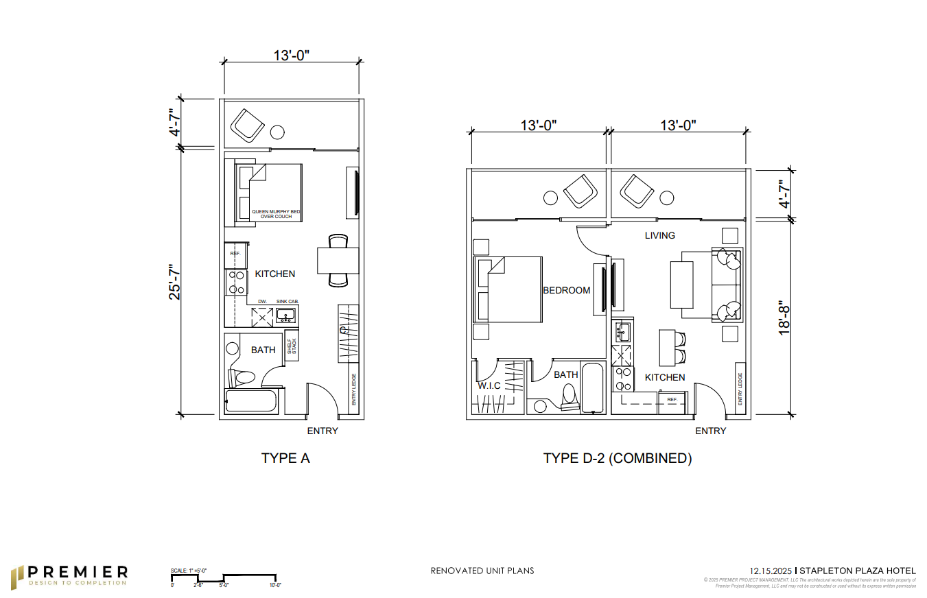
Architecture group Premier is behind the design, which focuses primarily on fine-tuning the hotel rooms into livable spaces within their existing footprint. The developer proposes converting the hotel rooms into studio and one-bedroom units ranging from approximately 330 to 500 square feet, as indicated by documents submitted to the City of Denver.

Image courtesy of City of Denver.
The building will also maintain its existing fitness center and 400+ surface parking spaces. The property does not need to undergo a zoning change, according to the applicant, as this use is already permitted under its existing "S-CC-3X Dwelling, Multi-Unit." The project is still under review by the City of Denver, and a timeline has not yet been announced for the redevelopment.

