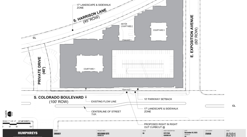
Major Shopping Center Conversion to Multifamily Residential in Denver’s Belcaro Neighborhood
Shopping Center to Transform into a Multifamily Housing Development in Denver’s Belcaro Neighborhood A major redevelopment is on the horizon
Read MoreShopping Center to Transform into a Multifamily Housing Development in Denver’s Belcaro Neighborhood A major redevelopment is on the horizon
Read More